14
Ex-Church
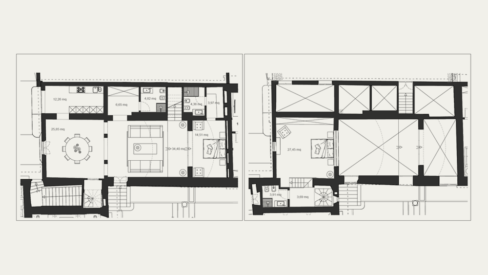
This charming one-bedroom residence boasts a private garden, wonderful countryside views and sweeping vistas of the estate’s olive groves, herb gardens and vineyards. Perfectly situated to the swimming pool and spa areas.
€1,300,000









