09
Gonfaloniere di Giustizia
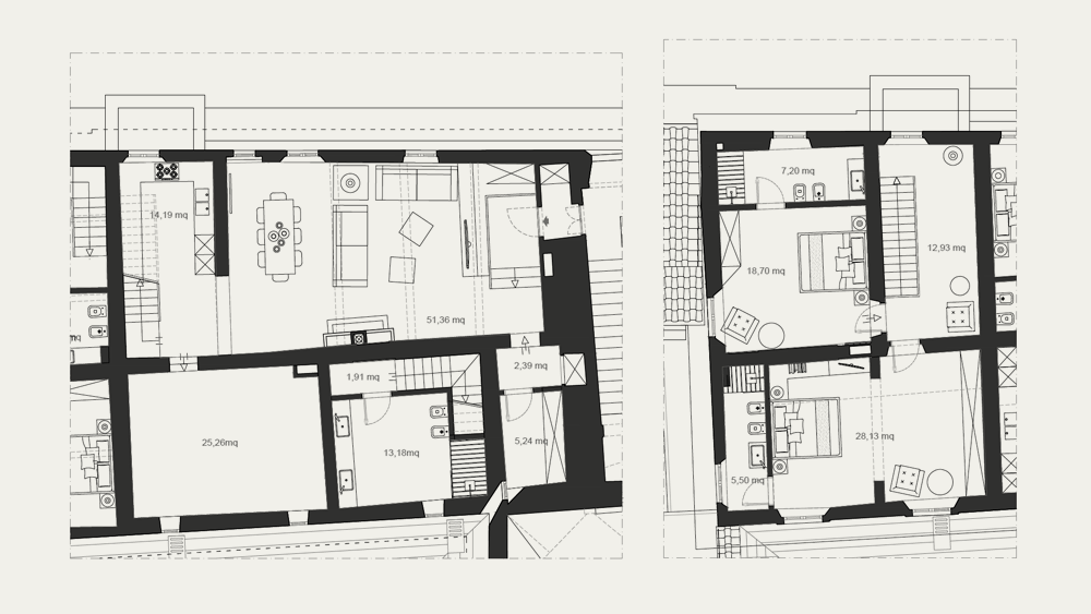
A sublime grand two-bedroom apartment distributed between two floors, offering privacy, space and views of the olive groves and countryside. This apartment enjoys a location that gives ease of access to the swimming pool, spa, Technogym and wine cellar.
€1,700,000








